Понуда<br локала" class="nolazy" />

Понуда
локала

Пронађите савршен пословни простор или инвестицију у склопу модерног стамбеног-пословног комплекса Вртови Церака.

Бизниси већ успешно послују у Вртовима

Више локала је не само усељено, већ успешно ради - од продавница и апотека, до кафића и услужних делатности.

Придружите се окружењу у ком ваше пословање може одмах да стане „на ноге“ - на провереној локацији са сталним протоком људи.

Одмах усељиви локали

Искористите последњу прилику.
У оквиру друге фазе комплекса доступан је још један одмах усељив локал!

Локал 5 - 98,52 м²

Пословни простор у оквиру друге фазе комплекса Вртови Церака налази се у приземљу и спреман је за  усељење.

Погодан је за различите делатности - од малопродаје и услужних активности до канцеларијског простора.

Простор је светао, функционално организован и одлично позициониран, са високим степеном видљивости. Налази се на веома фреквентној локацији, у низу већ активних локала са константним протоком станара и посетилаца.

У непосредном окружењу су педијатријска ординација, фитнес студио, као и теретана Athletic’s Gym.

Локал 5 - 98,52 м²

Доступни локали у III и IV фази

Сви локали се налазе у приземљу зграда, са директним излазом на улицу или унутрашњу пешачку зону, што их чини изузетно приступачним.

Погодни су за разноврсне делатности, као што су:

  • малопродајни објекти
  • салони лепоте и фризерски салони
  • медицинске и ветеринарске ординације
  • лабораторије
  • канцеларије и co-working простори
  • pet shop-ови
  • различите услужне делатности, итд.

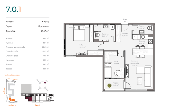
Стан идеалан за канцеларију

Стан 7.0.1 се налази у четвртој фази комплекса, чије је усељење планирано крајем године. Смештен је у приземљу, на самом углу две улице – Нова 1 и Нова 4, што му обезбеђује одличну видљивост и приступачност.

У непосредној близини налазе се локали, као и улаз у гаражу, што додатно доприноси фреквентности и сталном протоку људи.

Захваљујући својој позицији и функционалности, овај простор представља одличан избор за канцеларију или различите пословне делатности.

Стан идеалан за канцеларију

Одмах усељив пословни простор поред MAXI локала

Продаје се функционалан локал површине 79,60 м² у оквиру III фазе стамбено-пословног комплекса Вртoви Церака. Локал је идеалан за различите делатности - од услужних и трговачких, до канцеларијских простора.

Постоји могућност спајања са суседним мањим локалом, што омогућава додатну флексибилност у организацији простора.

Налази се на изузетно фреквентној локацији, тик уз MAXI, са великим протоком људи, што га чини погодним за развој бизниса и одличну видљивост.

Простор је светао, модерно пројектован и може се прилагодити потребама закупца или купца.

Одмах усељив пословни простор поред MAXI локала

Изаберите простор за своје пословање у окружењу које расте.

Користимо колачиће да побољшамо ваше искуство. Ако наставите да посећујете овај сајт, прихватате нашу употребу колачића. Политика приватности